Office for rent

in Bertrange

RÉF. 15915

3.350 €/month

6 bedrooms

1 bathroom

163.00m2

4 places

< Back to property list

Interested in this property?

Let's discuss it, without commitment

Property description

Air-conditioned offices located in Bertrange on the Route de Longwy – 6 offices – Close to shops, freeway access and bus stops.

Address: 35, route de Longwy, Bertrange.

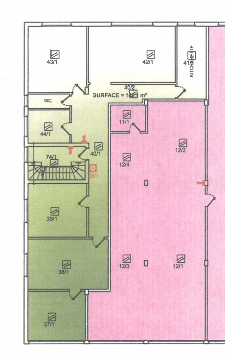
Located on the 1st floor, this office space is composed as follows:

Entrance hall, separate WC, separate fitted kitchen, bathroom and six offices.

Additional parking spaces available for €80/space.

The premises are equipped with an alarm system.

Availability: immediate

Rent: 3.350,00€ plus VAT
Estimated monthly charges: 400,00€
3 months rental guarantee
Agency fees: one month’s rent + 17% VAT
Inventory of fixtures to be paid by tenant 200,00€ + 17% VAT

Floor plan available on floor.lu

For further information, please contact
Mr Anthony JAECK
Tél. agent : +352 691 196 975
Tél. agency : +352 28 32 77
E-mail: agency@floor.lu

Photo gallery

"*" indicates required fields

This field is for validation purposes and should be left unchanged.
This field is hidden when viewing the form

When would you like us to contact you??

Callback preference*

"*" indicates required fields

This field is for validation purposes and should be left unchanged.

Would you like to discuss your projects or get some information?